Римарком



НАЙТИ АГЕНТА В ЧЕХОВЕ
Московская обл., г.Чехов
НАЙТИ АГЕНТА В ТиНАО
г. Москва, г. Троицк

Продажа : Коммерческая недвижимость, 10 комнат(а)

Москва, Текстильщики
Москва, Текстильщики, Люблинская ул., 25/1
ID: 122874738
Цена: 47 000 000 ₽
Телефон: +79031422758



Ключевое преимущество:
Первая линия домов! Помещение выходит прямо на Люблинскую улицу, напротив — Люблинский рынок.
· Проходимость: Очень высокая за счет интенсивного автомобильного и пешеходного трафика.

Парковка:
· Рядом с помещением организована бесплатная парковка для клиентов и сотрудников.
Есть два входа:отдельный с улицы и запасной со двора.

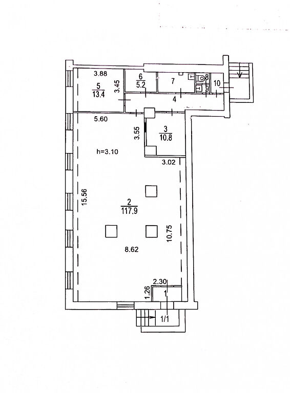
Характеристики помещения:
· Общая площадь: 170 кв. м.
· Планировка: Состоит из 10 изолированных помещений, что идеально для зонирования (торговый зал, склад, административные кабинеты, комната отдыха).
· Коммуникации: В наличии «мокрая точка» (подведена вода и канализация).
· Входы: Два входа — парадный с улицы для клиентов и запасной со двора для удобной разгрузки товара.


Помещение продается вместе с действующим бизнесом ИЛИ как объект недвижимости без бизнеса.
· Готовая, успешная аптека с наработанным клиентским потоком.
· Универсальная планировка подходит для других видов бизнеса: магазин продуктов, бытовой химии, салон связи, кафе и др.

Почему это выгодное предложение?
· Раскрученное место с высоким трафиком.
· Готовый бизнес с немедленным выходом на доход.
· Универсальное помещение с двумя входами и всей необходимой инфраструктурой

Общая площадь, кв.м.: 170
Жилая площадь, кв.м.: 169
Площадь комнат(ы), кв.м.: 165
Комнат: 10
Санузлы и их тип: 2
Этаж: 1
Всего этажей: 5

Расположение на карте



Дополнительная скидка по ипотеке
Получите дополнительную скидку* от наших партнёров или бесплатную консультацию по ипотеке:
ПАО Сбербанк — 0,3%
АО ЮниКредит Банк — 1%
АКБ Абсолют банк ПАО — 0,51%

* Оставив заявку на сайте rimarcom.ru, вы зафиксируете получение дополнительной скидки по ипотечной программе, которую предоставляют наши банки-партнёры.
Заказать обратный звонок

ID объекта: 122874738

Написать сообщение

ID объекта: 122874738

Римарком