Римарком



НАЙТИ АГЕНТА В ЧЕХОВЕ
Московская обл., г.Чехов
НАЙТИ АГЕНТА В ТиНАО
г. Москва, г. Троицк

Продажа : Квартира, 2 комнат(а)

Московская область, Чехов
Чехов г., Земская ул., 1
ID: 115002145
Цена: 7 400 000 ₽
Телефон: +79257628093



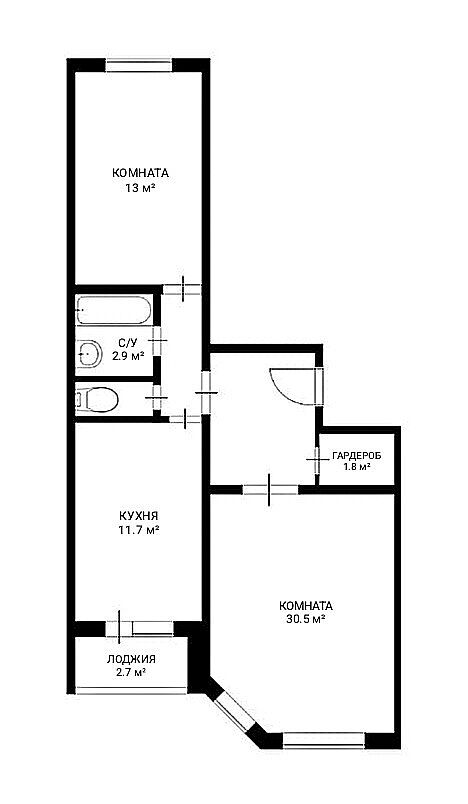
К вашему вниманию! В продаже появилась отличная двухкомнатная квартира по приятной цене! | г. Чехов, ул. Земская, д.1

| ГЛАВНЫЕ ПРЕИМУЩЕСТВА
• Удобная изолированная планировка с двумя просторными комнатами
• Большая площадь — 61.9 м²
• Микрорайон Губернский обладает всей необходимой инфраструктуройв шаговой доступности
• Квартира полностью укомплектована техникой и мебелью, косметический ремонт в хорошем состоянии — заезжай и живи!
• Высокий этаж (15/16) и собственная лоджия с приятным видом на двор — можно присматривать за ребенком
• Кухня комфортной площадью 11.7 м² — тесно не будет
• Квартира-распашонка — свет целый день и хорошая вентиляция
• В паре минут пешком новый обустроенный лесопарк
• Также стоит отметить: санузел раздельный и имеется гардеробная при входе

| ДОПОЛНИТЕЛЬНО
• В подъезде 2 лифта: пассажирский и грузовой
• 2 взрослых собственника, никто не прописан
• Свободная продажа, без обременений — быстрый выход на сделку

Смотрите фото — квартира ухоженная и уютная. Оперативные показы! Звоните и пишите, чтобы узнать детали и назначить просмотр, посмотрите эту квартиру своими глазами!

Общая площадь, кв.м.: 61
Жилая площадь, кв.м.: 33
Площадь комнат(ы), кв.м.: 33
Площадь кухни, кв.м.: 11
Комнат: 2
Санузлы и их тип: раздельный
Этаж: 15
Всего этажей: 16
Шоссе: Симферопольское шоссе
Расстояние до МКАД, км: 46

Расположение на карте



Дополнительная скидка по ипотеке
Получите дополнительную скидку* от наших партнёров или бесплатную консультацию по ипотеке:
ПАО Сбербанк — 0,3%
АО ЮниКредит Банк — 1%
АКБ Абсолют банк ПАО — 0,51%

* Оставив заявку на сайте rimarcom.ru, вы зафиксируете получение дополнительной скидки по ипотечной программе, которую предоставляют наши банки-партнёры.
Заказать обратный звонок

ID объекта: 115002145

Написать сообщение

ID объекта: 115002145

Римарком