Римарком



НАЙТИ АГЕНТА В ЧЕХОВЕ
Московская обл., г.Чехов
НАЙТИ АГЕНТА В ТиНАО
г. Москва, г. Троицк

Продажа : Дом, 4 комнат(а)

Брянская область
Брянск г., Володарский, Клары Цеткин ул., 47
ID: 104267820
Цена: 11 900 000 ₽
Телефон: +79264323341



Код объекта: 867143.
Предлагаем к продаже 2-х этажный дом в Володарском районе г. Брянск для круглогодичного проживания.

ПРОДАЖА БЕЗ КОМИССИИ ПОКУПАТЕЛЯ!

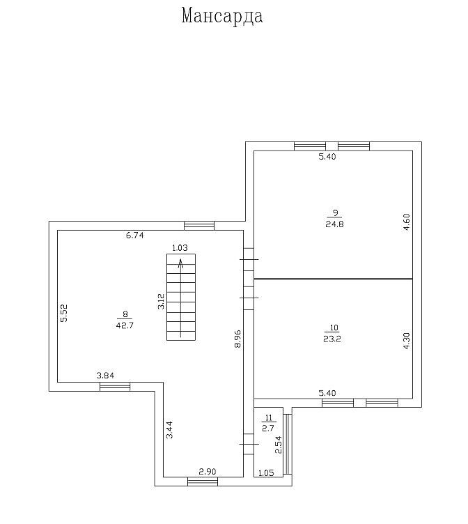
Практичная планировка с большими светлыми комнатами: 3 спальни, гостиная (каждая по 26 кв.м.).
Кухня - 25,8 кв.м.: полностью оборудована ( встроенный кухонный гарнитур, бытовая техника).
Совмещенный санузел на 1-м этаже - 10 кв.м (тёплый пол в санузле).
Просторные холлы и комната отдыха - свободное пространство для организации игровой зоны (бильярда или настольного тенниса).
Покрытие полов - качественный, современный ламинат разных цветов в стиле комнат.
Высота потолков - 3 м ( потолки натяжные).

Два выхода из дома : при выходе во внутренний двор обустроена крытая терраса, с организованным освещением.

Конструктив дома выполнен из газосиликатных блоков, снаружи по фасаду - кирпичная кладка. Перекрытия - струганые бревна 30-40 см в диаметре. Кровля- шифер. Фундамент- ленточный.

Коммуникации: магистральный газ, центральное городское водоснабжение, канализация - 2 переливных колодца
(конструкция сооружена в 2022 году), электричество - 15 кВт.

Ухоженный участок с садовыми насаждениям: плодовые деревья и кустарники: абрикос, вишня, 3 черешни, 2 груши, 2 жёлтых сливы, персик, чёрная рябина, кусты крупной малины сорт "Шапка Мономаха", смородины, жимолости, ежевики, крыжовника. Оборудованные грядки из деревянных панелей. Насаждения из сортовых роз и пионов. Ухоженный газон.

Теплица.

Навес для машины.


Показ в согласованное время.

Общая площадь, кв.м.: 196
Жилая площадь, кв.м.: 106
Площадь комнат(ы), кв.м.: 103
Площадь кухни, кв.м.: 25
Комнат: 4
Санузлы и их тип: совмещенный
Всего этажей: 2
Площадь участка: 8

Расположение на карте



Дополнительная скидка по ипотеке
Получите дополнительную скидку* от наших партнёров или бесплатную консультацию по ипотеке:
ПАО Сбербанк — 0,3%
АО ЮниКредит Банк — 1%
АКБ Абсолют банк ПАО — 0,51%

* Оставив заявку на сайте rimarcom.ru, вы зафиксируете получение дополнительной скидки по ипотечной программе, которую предоставляют наши банки-партнёры.
Заказать обратный звонок

ID объекта: 104267820

Написать сообщение

ID объекта: 104267820

Римарком